Relocation Project Update
February 20, 2026
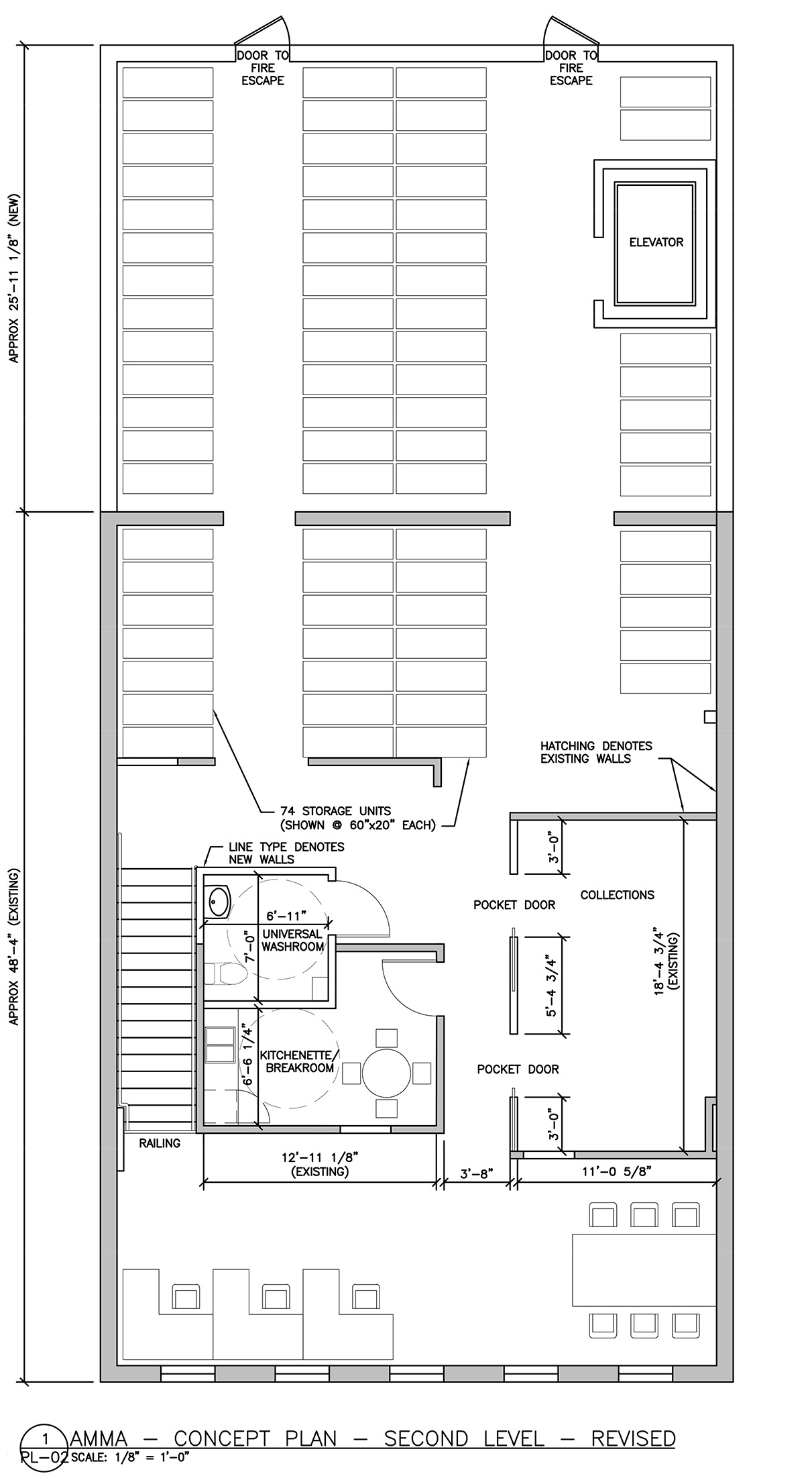
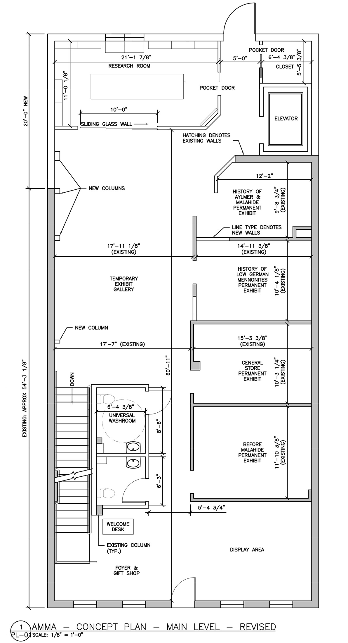
We’re excited to announce that Phase One of the Relocation Project is complete! With the assistance of Rimkus Consulting, we have building condition reports (including the structure of the building following destructive testing), and our preliminary concept plans. For the results of our building condition reports, check out our previous updates here and here.
With the building’s structure mapped out, Rimkus was able to draft some concept plans. We received a draft of the concept plans in October of 2025. After providing feedback, Rimkus revised the plans, and presented us with a final draft in November 2025. The museum’s board of directors approved the concept plans at our board meeting on December 16, 2025.
Please have a look at the new plans below! (Click for larger images.)
Next Steps
In Phase Two, we will be asking an engineering firm to draft a detailed design, including architectural, civil/structural, and MEP design, including site plans, floor plans, building elevations, distinctive architectural features, and an MEP systems outline. In Phase Three, we will require construction assistance in the form of review/approval of contractor submittals, requests for information (RFIs) and final construction review.
We’re currently making incremental payments for Rimkus’ assistance with Phase One, which cost $59,800. We are working on our request for proposals for Phase Two, which we’ll submit for open bidding once complete.
Current Finances
- The Relocation Fund currently contains $211,539.18
- We purchased the building for $400,000.
- Phase One will cost us $59,800.


